POU Varaždin

AUDIO Građani šireg varaždinskog područja educirat će se u novom Parku kreativnih industrija na mjestu bivšeg Kina Dom

Autor: NJN 29.10.2025. 09:00h
Autor: NJN 29.10.2025. 09:00h

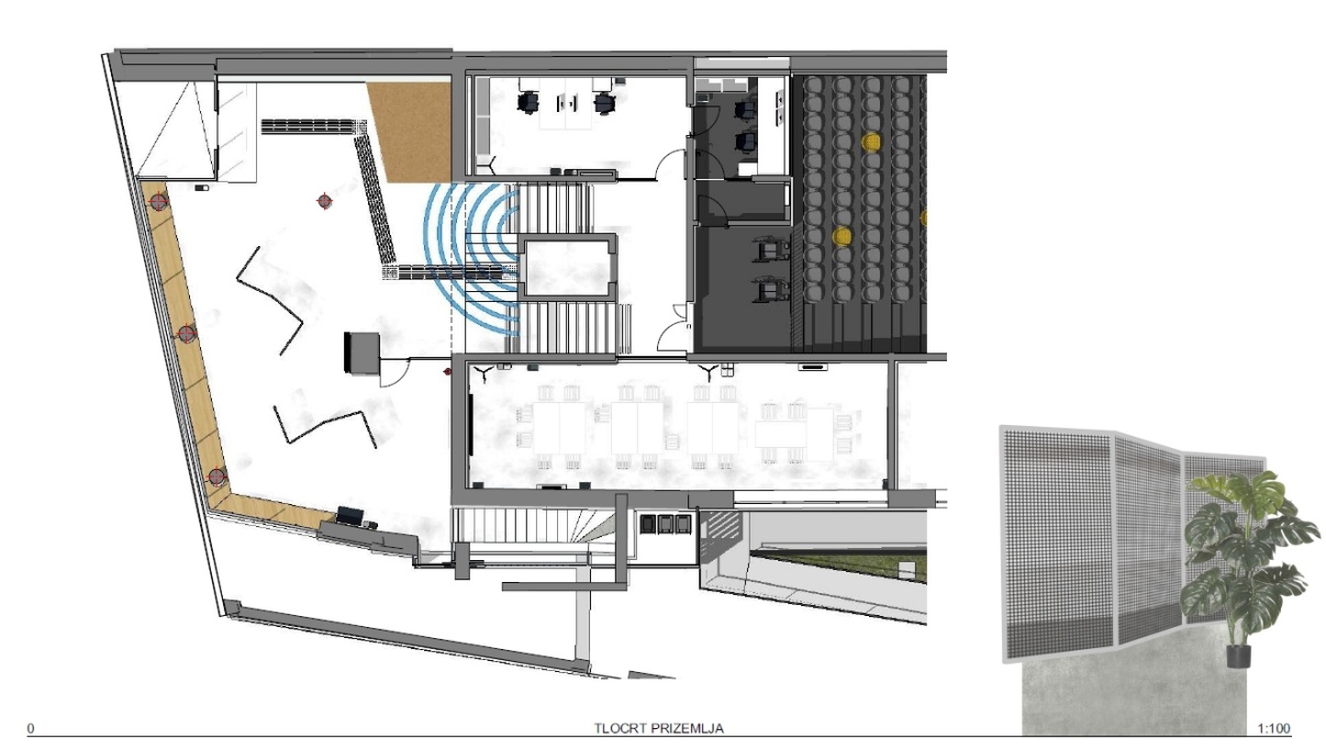
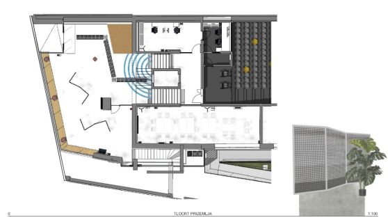
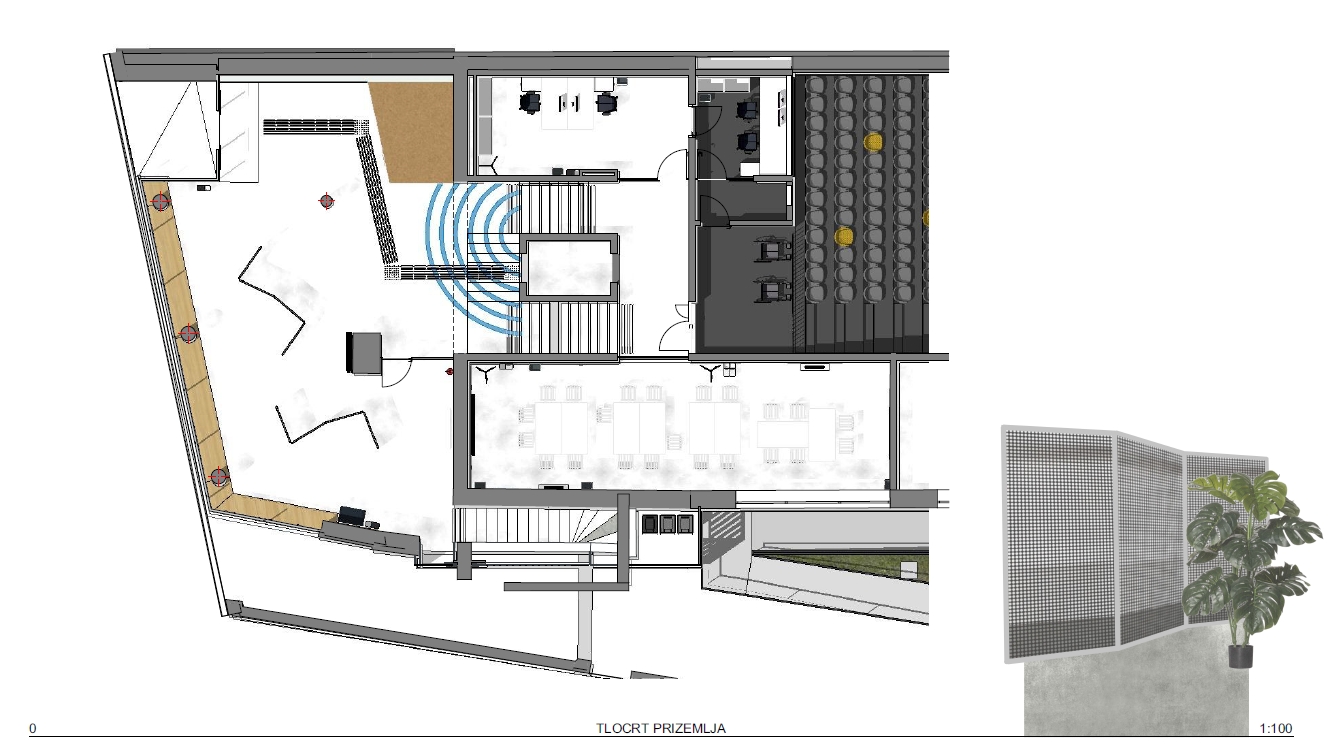
U Park Boutique hotelu u utorak su predstavljene aktivnosti na realizaciji projekta "Centra kreativnih i kulturnih industrija urbanog područja Varaždin" na mjestu nekadašnjeg Kina dom gdje će biti nova multimedijalna dvorana, art kino, uredski prostori, učionice, konferencijska dvorana, izložbeni prostor, kuhinja, skladište, garderoba i ostali prostori. Investitor projekta je Pučko otvoreno učilište Varaždin, a partneri na projektu su gradovi Varaždin, Ludbreg i Varaždinske Toplice te općine Trnovec Bartolovečki, Maruševec i Vinica.  Detaljnije o ovom projektu vrijednom oko 5,5 milijuna eura koji je 85% sufinanciran od strane Europske unije poslušajte u prilogu Nikoline Jureković Novoselec, a u galeriji niže saznajte kako bi to trebalo izgledati.

POU Varaždin
0:00 / 0:00