U sklopu Srijede u Muzeju, 22. siječnja održava se predavanje "Prostorni plan i njegova metamorfoza: Vila Oblath u Varaždinu"

Autor: 17.1.2025. 11:07h
Megaton oglasi 1440x250

Zlatko Neumann diplomirao je arhitektonsko inženjerstvo 1925. na Tehničkoj visokoj školi u Beču. Tijekom studija bio je među najvažnijim učenicima i suradnicima arhitekta Adolfa Loosa, a za boravka u Parizu 1926. – 1927. bio je odgovorni arhitekt gradske kuće dadaističkog umjetnika T. Tzare, koju je projektirao Loos. Od Loosa je preuzeo i usavršio metodu arhitektonskog projektiranja (njem. Raumplan), koju je u prijevodu na hrvatski jezik nazvao prostorni plan, gdje se raspored prostorija rješava trodimenzionalno tako da glavne prostorije imaju više stropove, a sporedne niže. Prostorni plan prvi put je primijenio 1926. na neizvedenom projektu „Male kuće“ za naselje Weissenhof kod Stuttgarta 1927., a zatim na projektu Vile Zypser-Kardoš u Zagrebu.

Prva izvedena, Vila Klaić u Zagrebu 1932., preslikava unutarnji raspored prostornog plana na vanjsko obličje, koje odražava konstruktivistički dinamizam, dok sljedeća, Vila Schwarz, skuplja dinamiku prostornog plana u jednostavnu vanjsku ovojnicu.
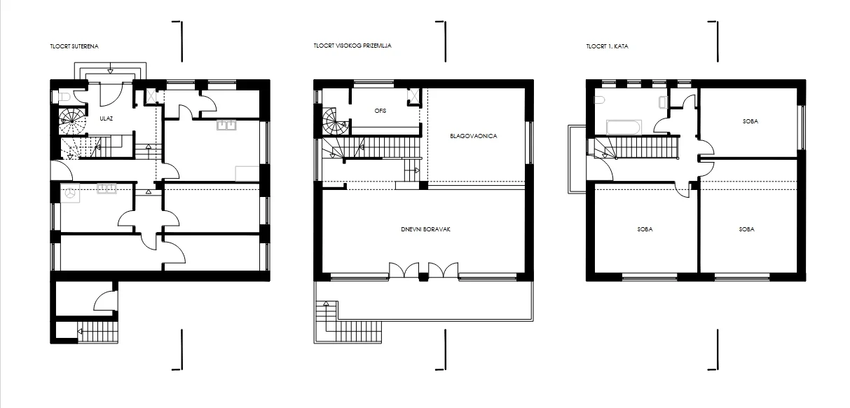
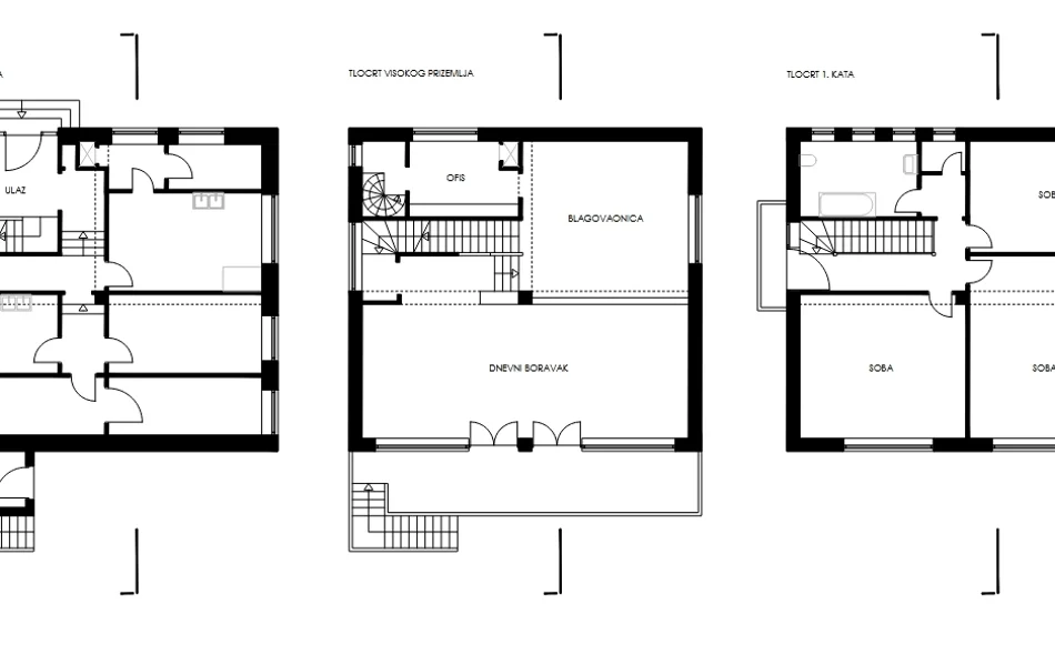
Sljedeće dvije vile izgrađene su u Varaždinu, čime je upravo Varaždin postao referentna točka u arhitektonskom stvaralaštvu arhitekta Z. Neumanna. Vila Oblath, izgrađena 1934., predstavlja krucijalnu točku ravnoteže u njegovu opusu individualnih stambenih zgrada: prostorni plan doma za obitelj zatvoren je u građevno tijelo kvadra s kvadratnim tlocrtnim obrisom, povezan samo jednim stubištem.

Predavanje je pripremio ovlašteni arhitekt Darko Kahle, koji se kao samostalni znanstvenik bavi poviješću arhitekture Modernog pokreta u Njemačkoj i Hrvatskoj. Član je mnogih arhitektonskih udruga, objavljuje znanstvene i stručne članke, a dosad je osvojio tri otkupa na arhitektonskim natječajima. Živi u Essenu, u Njemačkoj.

Planex 1440x250

Predavanje počinje u 19 sati, a ulaz je besplatan.