Velike vijesti za Ludbreg!

Grad dobiva novu, povezanu mrežu zelenih prostora kroz devet urbanih točaka

Autor: MP 25.3.2026. 14:00h
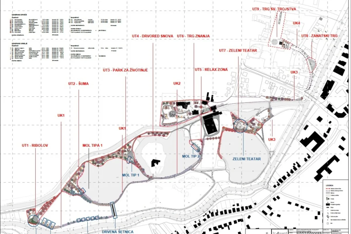
Grad dobiva novu, povezanu mrežu zelenih prostora kroz devet urbanih točaka: Ribolovni park, Šumsku aleju, Park za životinje, Drvored snova, Relax zonu, Trg znanja, Zeleni teatar, Zanatski trg i Trg Svetog Trojstva, koje će biti povezane kroz četiri urbana koridora u jednu cjelinu. To znači više zelenila, više hlada, više mjesta za druženje, rekreaciju i boravak na otvorenom za sve generacije. 

-Ovo je rezultat velikog truda našeg projektnog tima. Posebno me veseli što ovim projektom stvaramo ljepši, zeleniji i kvalitetniji Ludbreg za sve naše građane. Veselim se provedbi i svemu što donosi. - komentirao je gradonačelnik Dubravko Bilić.